Floor Plans

The Nostalgia

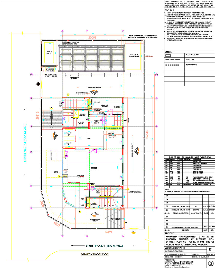
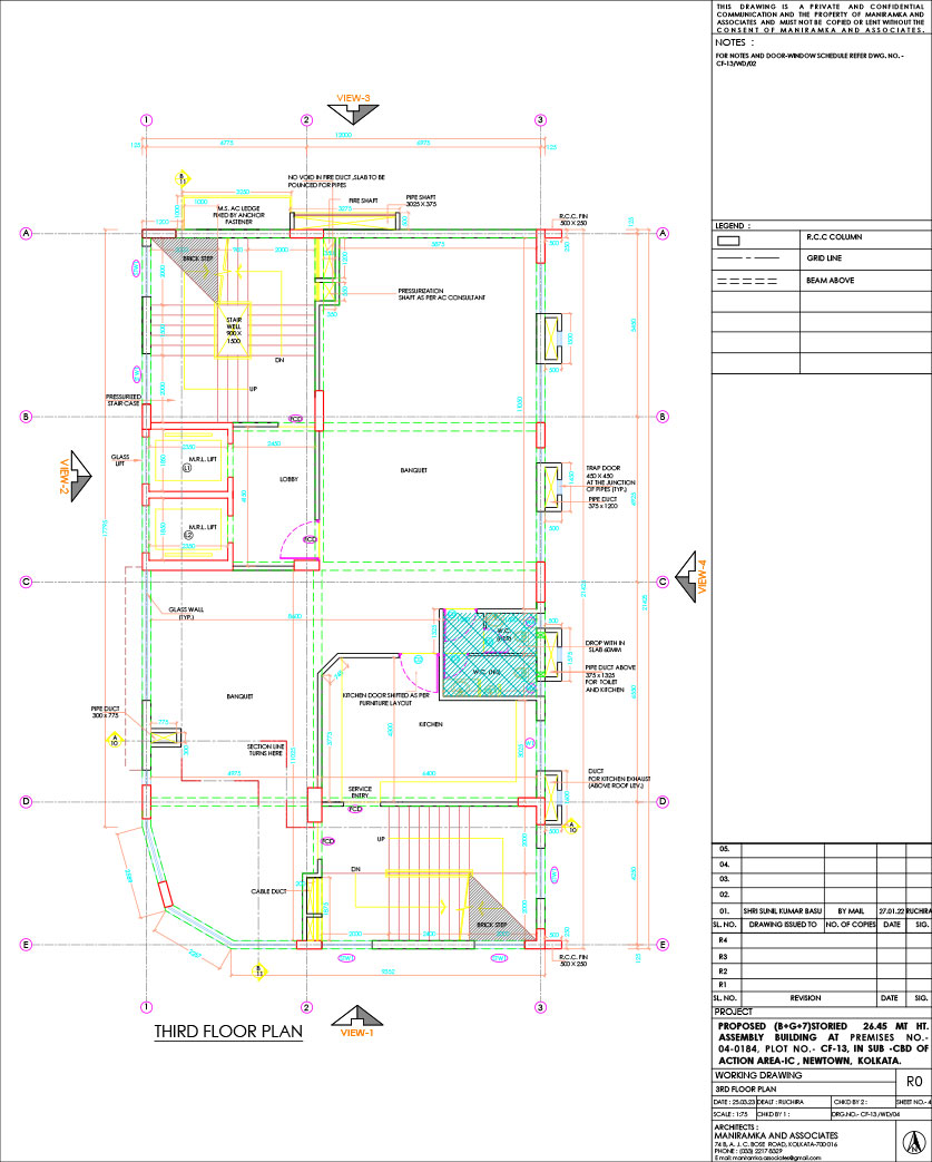
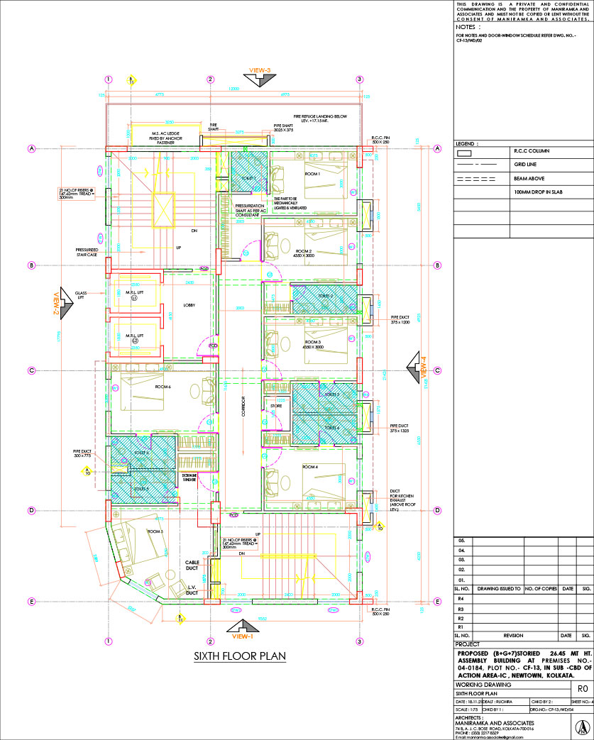
AREA STATEMENT OF CF-13

SL. NO. TYPE COVERED AREA - INCLUDING LIFT,STAIR,LOBY & PASSAGE(SQ.FT) SUPER BUILT UP AREA (SQ.FT)
1 BASEMENT 3325.2 4156 (COVERED AREA + 25% OF COVERED AREA)
2 GROUND FLOOR 2737.5 3559 (COVERED AREA + 30% OF COVERED AREA)
3 1ST FLOOR 2737.5 3559 (COVERED AREA + 30% OF COVERED AREA)
4 2ND FLOOR 2737.5 3422 (COVERED AREA + 25% OF COVERED AREA)
5 3RD FLOOR 2737.5 3422 (COVERED AREA + 25% OF COVERED AREA)
6 4TH FLOOR 2737.5 3422 (COVERED AREA + 25% OF COVERED AREA)
7 5TH FLOOR 2737.5 3422 (COVERED AREA + 25% OF COVERED AREA)
8 6TH FLOOR 2737.5 3422 (COVERED AREA + 25% OF COVERED AREA)
9 7TH FLOOR 2737.5 3422 (COVERED AREA + 25% OF COVERED AREA)
10 ROOF 2737.5 3422 (COVERED AREA + 25% OF COVERED AREA)
TOTAL 27962.7 35228
For Lease license & Rental options click here

By submitting this form, I agree to be contacted by The Nostalgia appointed sales team and its channel partners.
Yes, I would like to receive information/updates via Call/SMS/Whatsapp/Email for future residential/ commercial projects.